Veřejná zakázka: Nové krematorium Ústí nad Labem – zázemí pro zaměstnance

Informace o veřejné zakázce

fáze zadávacího řízení Zadáno
Zakázka byla zadána.
DBID: 2051
Systémové číslo: P25V00000109
Spisová značka: MMUL/PO/VZ/286182/2025/KadT
Dle zákona: č. 134/2016 Sb.
Datum zahájení: 08.07.2025
Nabídku podat do: 22.07.2025 09:00

Název, druh veřejné zakázky a popis předmětu

  • Název: Nové krematorium Ústí nad Labem – zázemí pro zaměstnance
  • Druh veřejné zakázky: Stavební práce

Stručný popis předmětu:
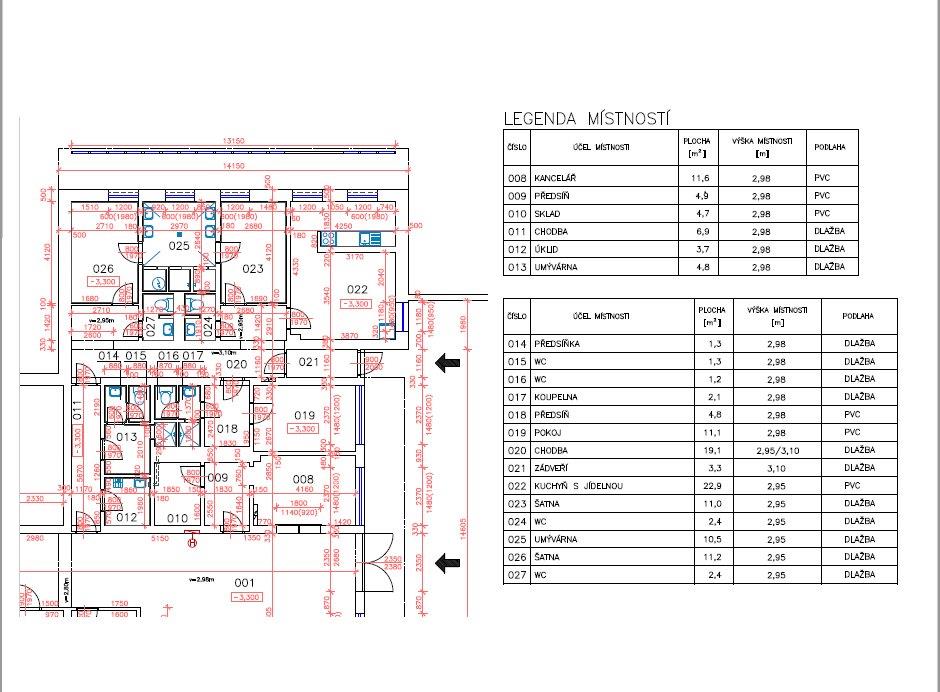
Předmětem plnění této veřejné zakázky malého rozsahu je provedení rekonstrukce zázemí pro zaměstnance v Novém krematoriu v Ústí nad Labem dle přílohy č. 4 – Výkaz výměr a přílohy č. 5 – Půdorys 1 PP.

Druh zadávacího řízení, předpokládaná hodnota

  • Druh řízení: otevřené řízení
  • Režim veřejné zakázky: VZ malého rozsahu
  • Předpokládaná hodnota: neuvedena

Zadavatel

  • Úřední název: Statutární město Ústí nad Labem
  • IČO: 00081531
  • Poštovní adresa:
    Velká Hradební 2336/8
    40001 Ústí nad Labem
  • Id profilu zadavatele ve VVZ: 512989

Adresa kontaktního místa

Nabídky, resp. žádosti o účast podávat na:
prostřednictvím elektronického nástroje E-ZAK (https://zakazky.usti-nad-labem.cz)

Kontakt

Položky předmětu (CPV)

Zadávací dokumentace

Vysvětlení, doplnění, změny zadávací dokumentace

Veřejné dokumenty

Formuláře

URL odkazy

Plnění smlouvy na základě veřejné zakázky